Progettare una camera da letto, così come un'altro spazio della propria casa, merita un'attenzione dedicata a quei particolari che la contraddistinguono in relazione a quella determinata attività che andrà ad ospitare.In questo articolo parlo di come nasce un mio progetto per una camera da letto, affrontando il processo in tutte le sue fasi.

Come sempre, parto dall'arredo sul quale si vuole focalizzare tutta l'attenzione dell'unità ambientale di nostro interesse ed in questo caso visto che siamo in una camera da letto il punto di partenza sarà il letto.

Assieme ai committenti abbiamo deciso di optare per un letto sospeso "con configurazione a doppio comodino" di Presotto modello Wing, a mio avviso un vero gioiello di design moderno.
Il modello del letto si addice molto al design finale che daremo alla nostra camera da letto, in sintonia col progetto generale degli altri ambienti della casa, anch'essi oggetto di un mio intervento progettuale.
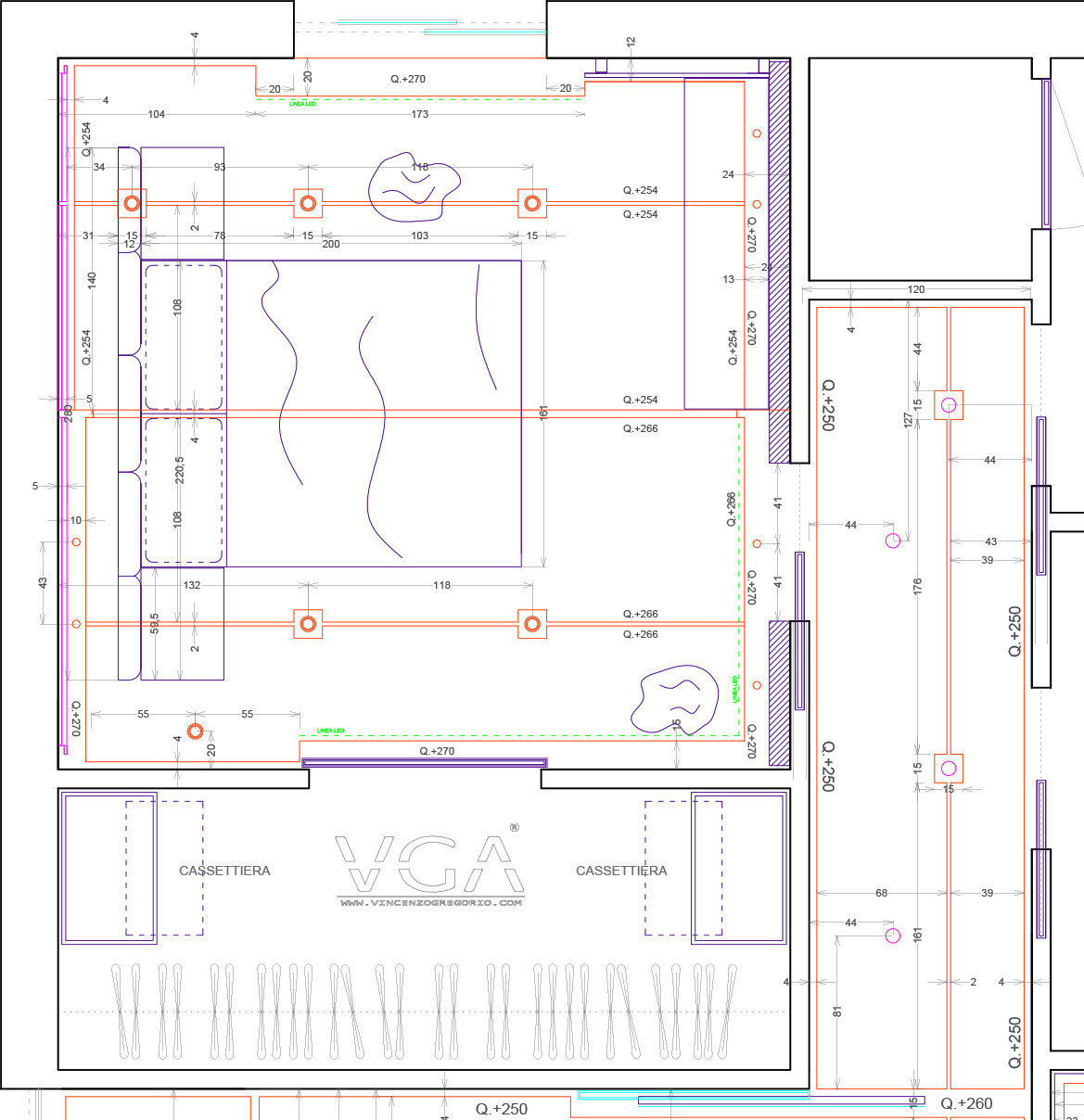
Dopo aver raccolto le informazioni tecniche e dimensionali del letto direttamente dal catalogo dell'azienda, elaboro il mio disegno di pianta della camera con all'interno l'ingombro reale del letto, ed altri arredi previsti. Su questa pianta inizio a ideare il layout dei controsoffitti e luci.

A pianta definita vado a tracciare il prospetto della retro testata del letto al fine di definirne il design. Parallelamente operando con una progettazione tridimensionale la camera inizia a materializzarsi sia figurativamente che esecutivamente nelle operazioni da dettare alle varie maestranze che saranno impegnati nella sua realizzazione.
Ma il mio ruolo nel campo non è solamente quello di dettare regole dimensionali e figurative, ma anche quello di suggerire soluzioni costruttive al fine di rendere efficace e fattibile il progetto. Questo particolare letto prevede strutturalmente un appoggio anteriore in plexiglass trasparente e l'ancoraggio a parete della testata. Questo dettaglio, soprattutto uando si opera con contropareti in cartongesso ( come nel caso specifico) non è un dettaglio da sottovalutare. Per poter rendere efficaci gli ancoraggi della rete ho previsto l'inserimento di un pannello di listellare d'abete nell'intercapedine della controparete, allo scopo di aumentarne la consistenza e fornire un supporto più solido ai tasselli delle staffe per il fissaggio della testata del letto.


Quando parlo di disegni esecutivi mi riferisco al dimensionamento tecnico di tutte quelle componenti, anche nascoste, che ogni maestranza per la sua parte di intervento è obbligata a seguire nel processo di composizione dell'opera. Ad esempio, questo in basso è il progetto del canalone centrale del controsoffitto che ho disegnato e che verrà posto in opera nelle dimensioni definite.

Abitualmente, salvo diverse richieste della committenza, amo inserire una parete TV frontale a letto, stilisticamente pensata in rapporto al design della camera. In questo caso ho operato con una boserie a moduli rettangolari, distanziati da giunti di 2x2 cm marcati neri. Per la realizzazione dei moduli della boserie è stato adoperato mdf da 22 mm, materiale adatto alla laccatura e che garantisce il proprio tono nel corso del tempo. Uno dei riquadri della boserie accoglie un televisore 49 pollici ultrapiatto fissato a parete con una staffa slim (totale pacchetto TV+ STAFFA 11cm). Sotto la tv, innestato nella "parete a riquadri" trova posizionamento un comò disegnato per l'occasione, composto da 3 cassetti profondità 50 cm.

CANTIERE IN CORSO



